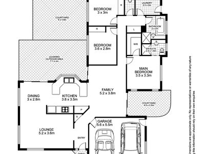
Just listed & well worth the inspection, this immaculate 3 bedroom home boasts spacious living quarters & sits on a stunning 629m2 block surrounded by neat, easily maintained landscaping & garden beds perfect for a low maintenance lifestyle.
Each of the spacious bedrooms, lounge and living areas offer ceiling fans and plenty of light-filled windows. The large central kitchen offers a breakfast bar and plenty of storage which leads into the tiled dining area and out onto the covered private patio.
Other Features include;
* Fully fenced yard with color bond fence
* Reverse cycle air conditioner in lounge room
* Family room
* Bathroom with separate shower and bath
* Security screens
* Remote control double lock up garage
This is an exceptional opportunity for buyers seeking the convenience of Eight Mile Plains living with the bonus of being within just walking distance to public transport, local shops & parklands. An opportunity like this wont be on the market long!
To arrange an inspection or further information contact Peter Arias today on 0423 008 290.
Features
- Air Conditioning
- Remote Garage

























